About this app
Introduction
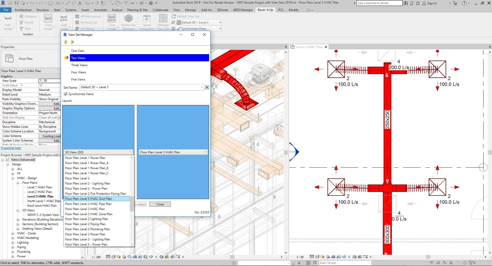
If you're looking to enhance your work efficiency in Autodesk Revit, the View Sets plugin is a powerful tool you should consider. This plugin allows you to save configurations of up to six views for easy retrieval at a later time. With features like synchronization capabilities and the ability to create multiple View Sets, this tool can truly streamline your workflow and help you work more effectively on complex projects.
(Image by: Revin It Up!)
Features of View Sets
The View Sets plugin for Autodesk Revit is designed to make your life easier by allowing you to save and synchronize views within the software. Here are some key features that make this plugin a valuable addition to your toolkit:
(Image by: Revin It Up!)
Save Configurations
One of the main advantages of View Sets is the ability to save configurations of up to six views. This means that you can set up your workspace exactly as you prefer, with specific views in certain positions, and then save this setup for future use. Whether you're working on a large project or need to switch between different tasks frequently, View Sets can be a huge timesaver.
(Image by: Revin It Up!)
Synchronization Capabilities
View Sets also provide synchronization capabilities, allowing Plan, Section/Elevation, and 3D Views to reflect the same area of a model or drawing. This means that if you zoom in on a specific area in the Plan view, the Section/Elevation and 3D Views can be set to automatically zoom in on the same area. This feature helps maintain consistency across your views and is especially useful when working on complex models or drawings that require frequent switching between views.
It's important to note that while you can save up to six views in a View Set, you're not limited to only six View Sets. You can create as many View Sets as needed for a project, allowing you to quickly switch between different configurations depending on the task at hand.
(Image by: Revin It Up!)
Conclusion
The View Sets plugin for Autodesk Revit is a valuable tool that can greatly enhance your work efficiency. With the ability to save configurations, synchronize views, and create multiple View Sets, this plugin streamlines your workflow and helps you work more effectively on complex projects. If you want to save time and improve your productivity in Revit, give View Sets a try. It's just one of many tools available within Autodesk's software suite designed to help you work more efficiently and effectively.
(Image by: Revin It Up!)
(Image by: Revin It Up!)
(Image by: Revin It Up!)
(Image by: Revin It Up!)











