About this app
Introduction
Revit users know the importance of having clean and professional-looking sheets for their projects. One key aspect of this is the alignment of room tags with detail lines. This is where Align Plus comes in - a powerful plugin that simplifies the alignment process and gives your sheets a polished finish. In this review, we will delve into the features and benefits of Align Plus, and why it is a must-have tool for Revit users.
(Image by: Solved Plus©)
Features of Align Plus
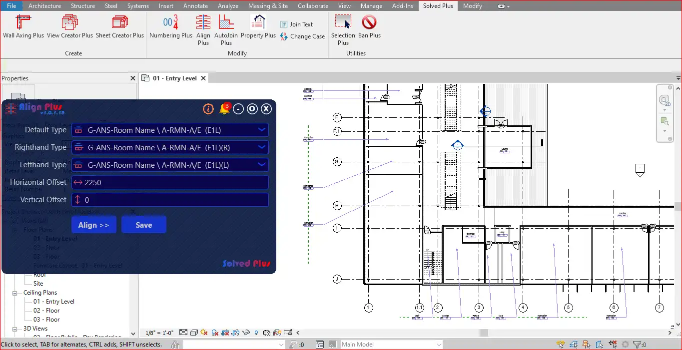
Align Plus offers a range of features that make aligning room tags a breeze. The plugin allows users to align all selected room tags to a chosen detail line, ensuring perfect alignment every time. To achieve the best results, it is recommended to use the room tag family provided with Align Plus, which includes Default Type, Right-hand Type, and Left-hand Type options. Users can also set horizontal and vertical offsets to control the elbow point location related to the family origin point.
In addition to aligning room tags, the new version of Align Plus offers even more functionality. Users can align selected elements or tags to various directions such as right, left, top, bottom, or center. The plugin also provides the option to untangle overlapped elements, determine spacing between them, and redistribute elements in vertical or horizontal directions. Another useful feature is the ability to align selected tags to the boundaries of the view when the crop view is active.
(Image by: Solved Plus©)
Ease of Use
One of the standout features of Align Plus is its user-friendly interface. The plugin is intuitive and easy to navigate, making it simple for users to align room tags with precision. The step-by-step process guides users through the alignment process, ensuring that even beginners can achieve professional results.
With Align Plus, users can save time and effort when aligning room tags, allowing them to focus on other aspects of their project. The plugin streamlines the alignment process, reducing the need for manual adjustments and minimizing errors.
(Image by: Solved Plus©)
Free 30-Day Trial and Licensing
Align Plus offers a free 30-day trial, allowing users to experience the full functionality of the plugin before making a purchase. During the trial period, users can purchase the app from the store via the PayPal payment method. To request a license, users simply need to click on the “License request” button available on the Align Plus app window.
Upon filling in the details and submitting the request, users will receive a valid license within 4 working days. It is important to note that users must purchase the app and request the license on or before the 26th day of the trial period to avoid any interruption to using the app post-30-day trial.
(Image by: Solved Plus©)
Conclusion
Align Plus is a valuable tool for Revit users looking to enhance the alignment of room tags on their sheets. The plugin offers a range of features that simplify the alignment process and help users achieve professional results with ease. With its user-friendly interface, free 30-day trial, and licensing options, Align Plus is a must-have plugin for anyone working with Revit. Try Align Plus today and take your Revit sheets to the next level!
(Image by: Solved Plus©)
(Image by: Solved Plus©)
(Image by: Solved Plus©)
(Image by: Solved Plus©)
(Image by: Solved Plus©)
(Image by: Solved Plus©)
(Image by: Solved Plus©)
(Image by: Solved Plus©)













