About this app
Introduction
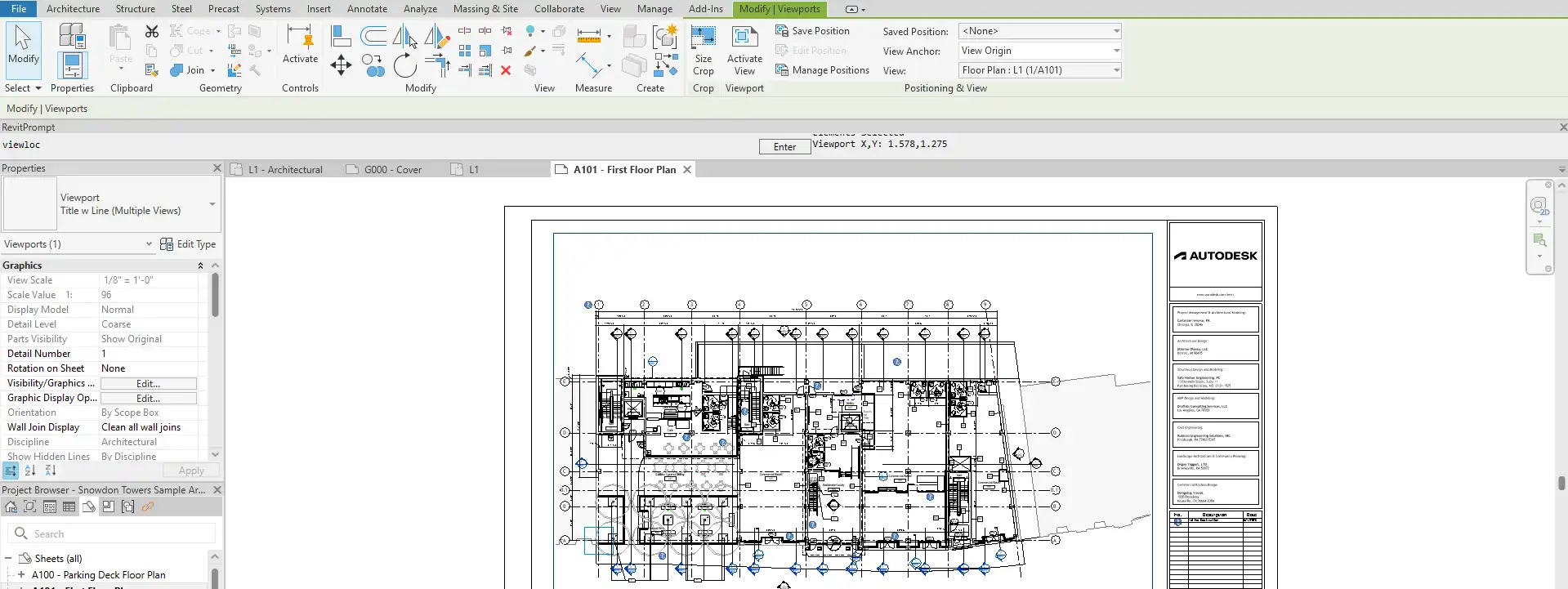
When it comes to working efficiently in Autodesk Revit, every second counts. That's where PromptTool comes in - a game-changing plugin that revolutionizes the way you navigate and execute commands in Revit. With its unique approach of using simple text prompts instead of traditional menu navigation, PromptTool offers a faster, cleaner way to work, making it a must-have tool for architects, engineers, and designers looking to streamline their workflow.
(Image by: Fourth Hill Digital)
Key Features
One of the standout features of PromptTool is its ability to run Revit commands instantly through simple text prompts. No more clicking through multiple menus or ribbons - just type what you want to do and watch it happen. This makes tasks like filtering, selecting, modifying, and managing elements a breeze, saving you valuable time and frustration.
In addition, PromptTool allows you to automate repetitive actions, such as creating views, sheets, and adjusting visibility graphics. This streamlines your workflow and helps you focus on the creative aspects of your project, rather than getting bogged down in tedious tasks.
Designed for power users, PromptTool is ideal for drafters, BIM coordinators, and advanced users who demand speed and precision in their work. Its minimal interface is lightweight, distraction-free, and keeps your focus where it should be - on the model.
(Image by: Fourth Hill Digital)
Why PromptTool?
If you find that traditional Revit navigation often slows you down, PromptTool is the solution you've been looking for. Say goodbye to endless clicking and hunting through toolbars - with PromptTool, the essentials are right at your fingertips. Just type and build, it's that simple.
Perfect for fast modeling and documentation, PromptTool is a game-changer for power users who rely on keyboard shortcuts to get the job done. BIM managers looking to standardize workflows across teams will also find PromptTool to be an invaluable tool in their arsenal.
(Image by: Fourth Hill Digital)
Conclusion
In conclusion, PromptTool is a must-have plugin for anyone working in Autodesk Revit. Its innovative approach to command execution and streamlined workflow make it an essential tool for increasing efficiency and productivity. Whether you're a seasoned pro looking to speed up your workflow or a BIM manager seeking to standardize processes across your team, PromptTool has something to offer. Give it a try and experience the difference for yourself!
(Image by: Fourth Hill Digital)









